Projects
Information
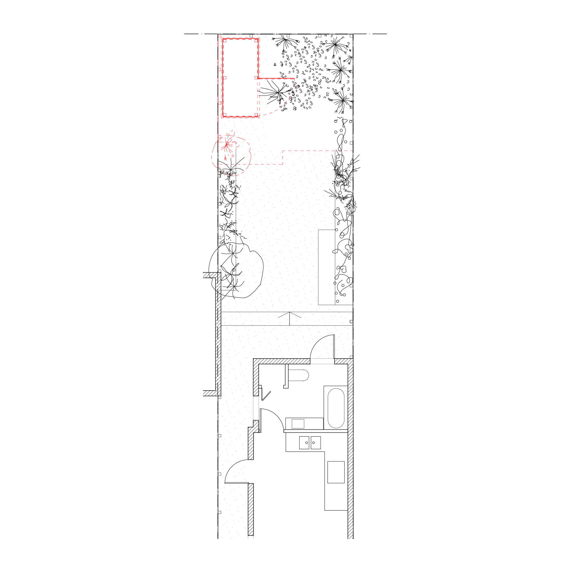
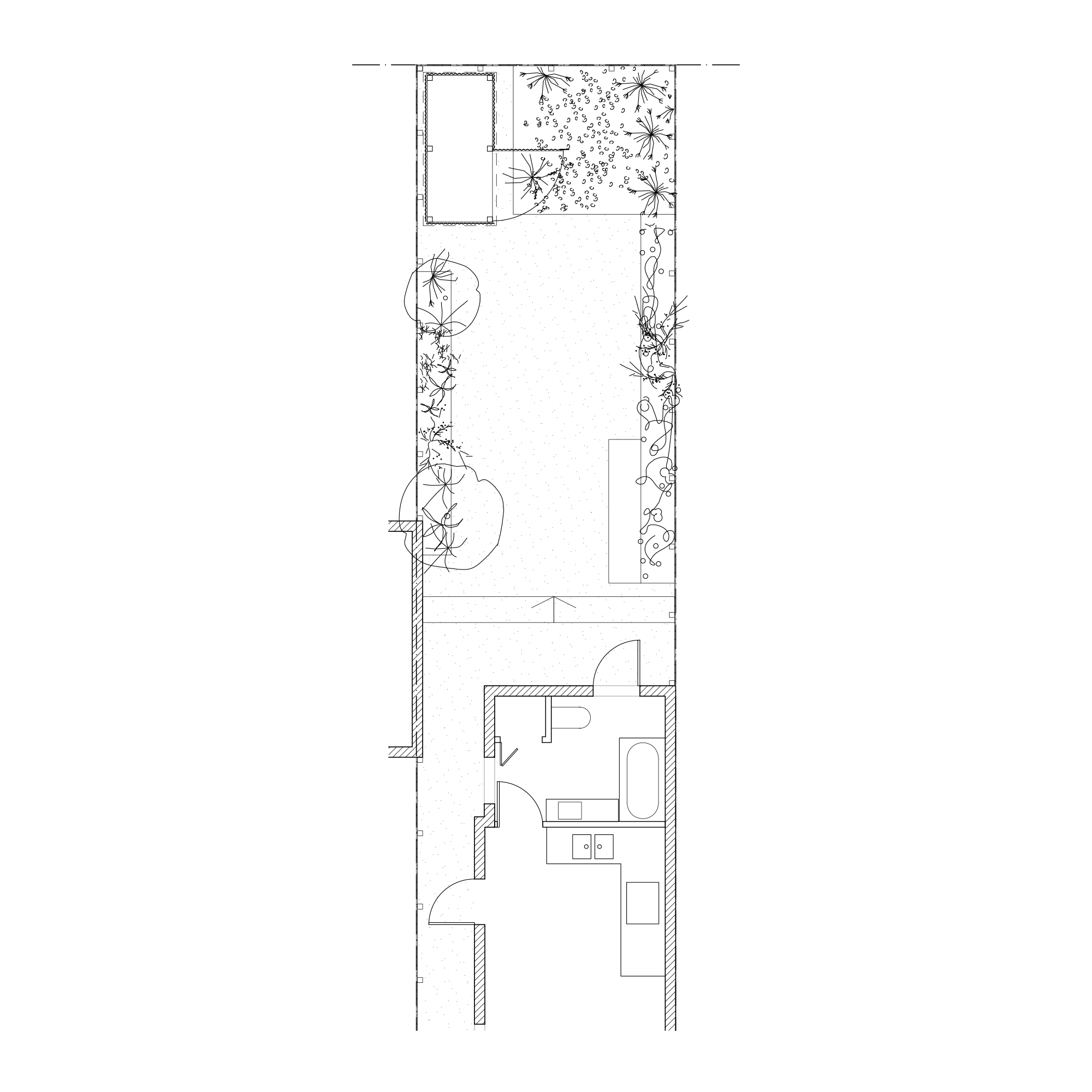
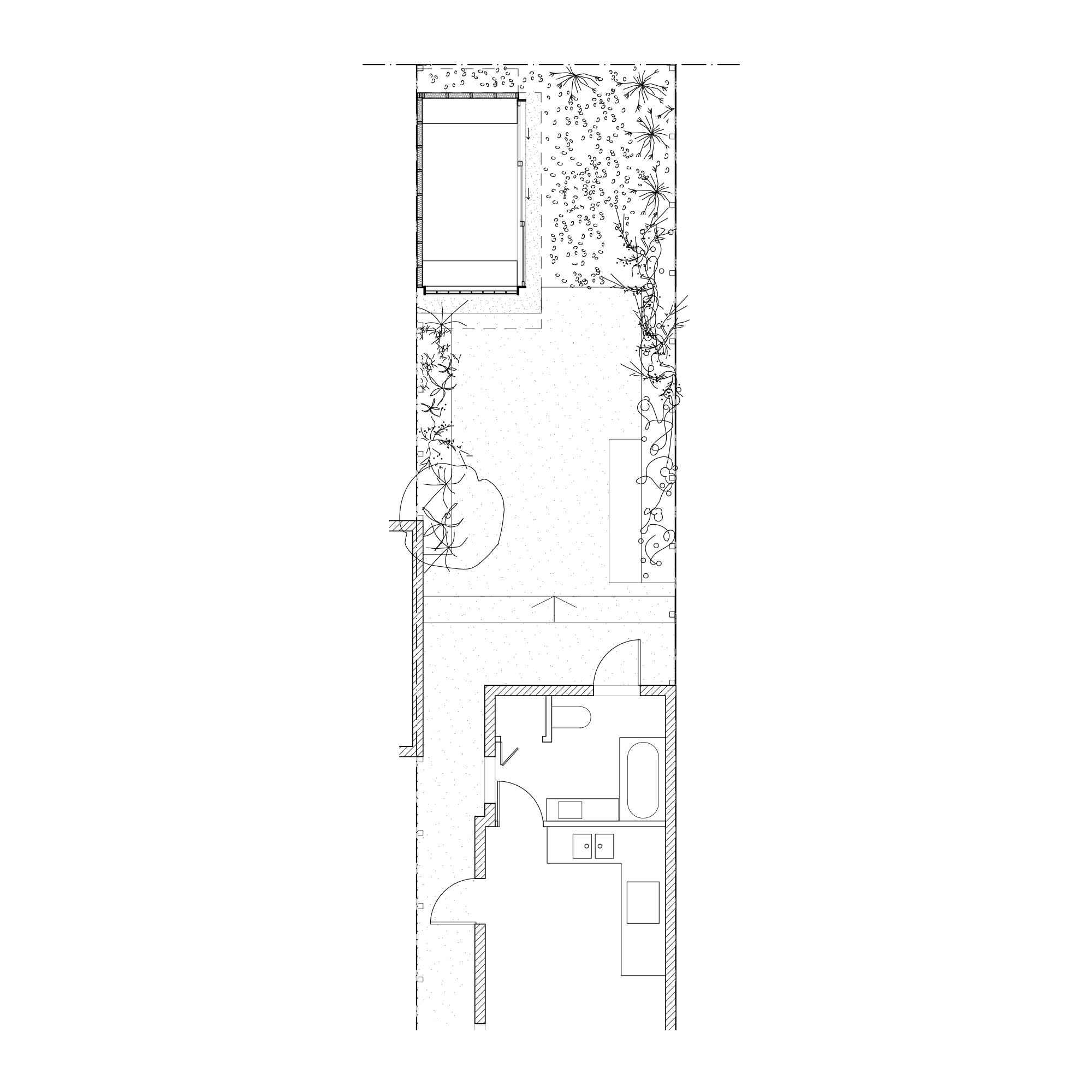
North Melbourne Outbuilding
North Melbourne, VIC
Next Project →
Instagram
408/37 Swanston St, Melbourne, VIC 3000